
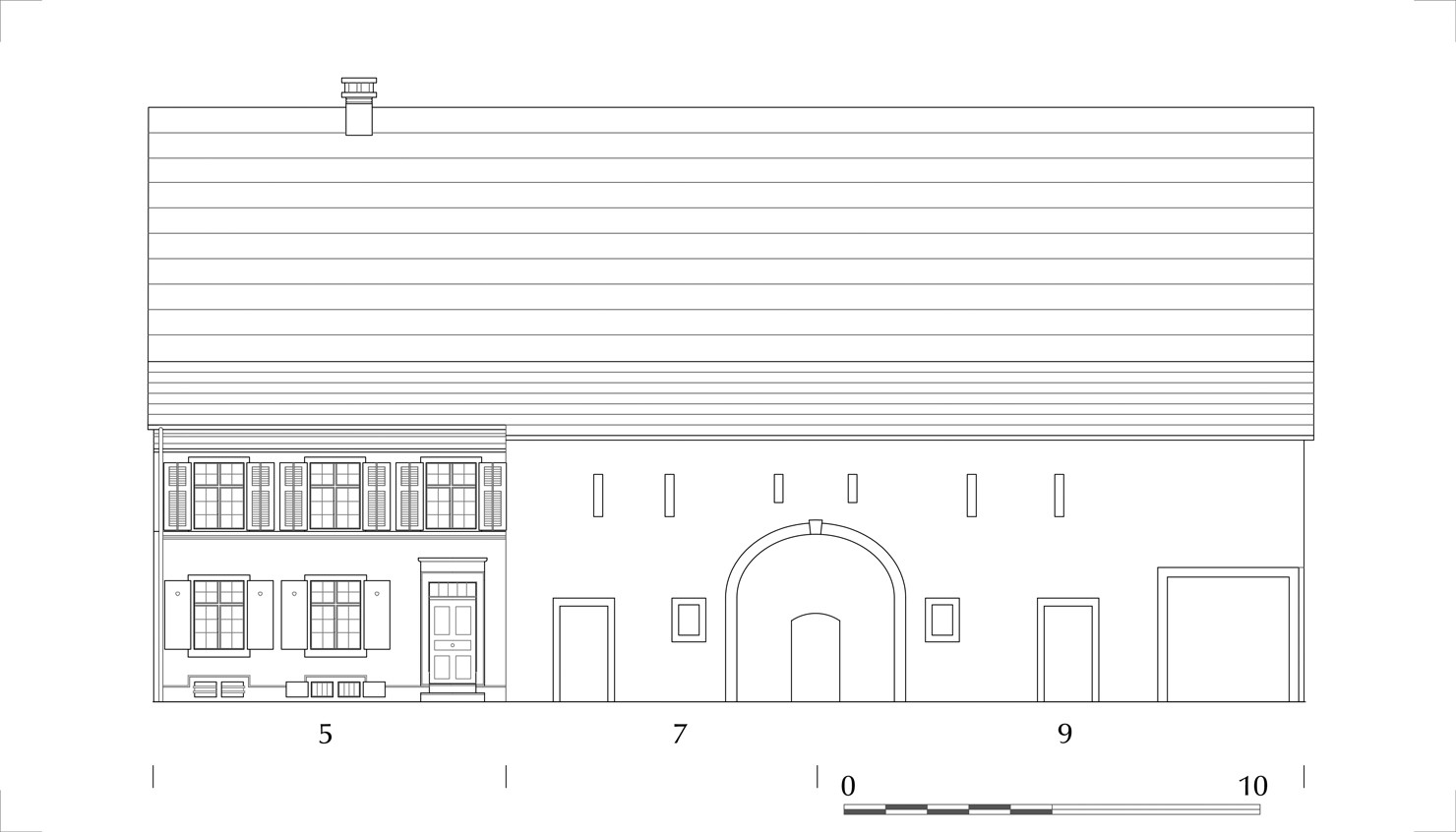
Auf der Parzelle Baselstrasse 5–9 ist im 17. Jahrhundert ein Grossbauernhof mit Garten dokumentiert. Nach einem Brand wurde 1839 ein grosses Wirtschaftsgebäude errichtet. 1862 wurde daran ein neues Wohngebäude angebaut, das heutige Haus Baselstrasse 5. Auf dem rückwärtigen Areal betrieb fortan der spätere Gemeindepräsident Jakob Mory eine Ziegelei. Die Fläche des Wirtschaftsgebäudes wurde 1914 mit dem Haus Baselstrasse 7 und 1930 mit dem Haus Baselstrasse 9 überbaut.
Autorin / Autor: Felix Ackermann | Zuletzt aktualisiert am 5.1.2026
Kaspar, Albin et al.: Häuser in Riehen und ihre Bewohner. Heft III. Riehen 2017. S. 24–27.
Raith, Michael: Von Ziegeleien, Hugenotten und den Mory in Riehen. In: Jahrbuch z’Rieche 2002. S. 48–61, hier S. 57, 59.